মডার্ন জাহাজে কন্ট্রোল-রুম থাকে, সেখান থেকেই ইঞ্জিন চালানো হয়। পুরানো জাহাজে, কোনো কন্ট্রোলরুম ছিলো না। আমরা ভীষণ গমগম শব্দের মাঝেই, গরমে ঘামতে ঘামতে কাজ করে যেতাম। এতক্ষণ তো অনেক কিছুই বললাম, কিন্তু একটা জিনিস বুঝেছেন, ইঞ্জীনরুম যে পানির তলায় থাকে। যেহেতু মেইন-ইঞ্জিন প্রপেলার ঘুরায়, আর প্রপেলারকে পানির তলায়ই থাকতে হবে, তাই জাহাজের ইঞ্জিনরুম পানির অনেক নীচে – তিন কি চারতলা গভীরে।
জাহাজ কীভাবে চলে? আগেকারযুগে পালতোলা জাহাজ চলতো বাতাস আর ঢেউয়ের সাহায্যে; সেইসঙ্গে মানবশক্তি – বন্দী-ক্রীতদাসেরা দাঁড় বাইতো। এরপরে ষ্টীম-ইঞ্জিন আবিষ্কার হওয়ার পরে, দাঁড়ের বদলে প্যাডেল-ডিজাইন করলো যেগুলো ষ্টীম দিয়ে চলতো। দুইপাশে দুইটা বড়-বড় চাকতির মত ঘুরতো; অথবা পিছনের দিকে একটা ঘুরতো। তারপরে আবিষ্কার হলো প্রপেলার – ষ্টীম-টারবাইন ঘুরিয়ে চলতো। তারপরে এলো ডিজেল-ইঞ্জিনের যুগ, যেটা এখনো চলছে। অন্যান্য আরো অনেক কিছুতেই জাহাজ চালে – নিউক্লিয়ার, হাই-প্রেসার পাম্প-জেট, মডার্ণযুগের পাল, কয়লা-চালিত ইঞ্জিন ইত্যাদি এক্সপেরিমেন্টাল জাহাজ। তবে ডিজেল-ইঞ্জিনই সবচেয়ে বেশী। মোদ্দাকথা হলো প্রপেলারকে পাখার মত ঘুরানো – একদিকে ঘুরালে জাহাজ সামনে যাবে, উল্টা ঘুরালে পিছে যাবে – মানে এইটা বৈঠা বা দাঁড়ের কাজ করে। প্রপেলারের পিছে থাকে রাডার (rudder) বা হাল, সেটাকে ডানে-বামে ঘুরালে জাহাজও ডানে-বামে যাবে।
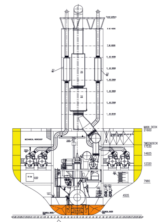
আসুন, এবারে ইঞ্জিনরুমে নামি। সাধারণত চার-পাঁচতলা হয়, কিন্তু একেক তলাই হয় নরমাল বিন্ডিং-এর দেড়-দুইতলার সমান। তার মানে ধরে নিতে পারেন ইঞ্জিনরুম সাত থেকে দশতলার সমান। গাড়ির সামনের বনেট বা হুড তুললে গাড়ির ইঞ্জিন দেখবেন। জাহাজের ইঞ্জিনও সেইরকমই বলা চলে, খালি একটু বড়। এই আরকি – ধরুন চার-পাঁচতলা বিল্ডিং-এর সমান। বিশ্বাস করুন, একটুও বাড়িয়ে বলছি না। আমরা ইঞ্জিনের এক-একটা সিলিন্ডার বা ইউনিটের ভিতরে তিনচারজন অনায়াসেই ঢুকে রিপেয়ারিং-এর কাজ করতাম। ইঞ্জিনরুমে ঢুকতে গেলে কিছু সেইফটি মেনে চলতে হয় – প্রথমতঃ জুতা জোড়া স্টীল-টো (steel-toe) এবং এন্টি-স্লীপ (antislip) হতে হবে, যাতে ভারী কিছু পায়ের উপরে পড়ে থেঁৎলে না যায়; এবং হাটা-চলার জায়গায় তেলের উপরে যাতে আছাড় না খান। কানে ইয়ার-প্লাগ বা ইয়ার-মাফ লাগে, তা নাহলে ইঞ্জিনরুমের নানারকম শব্দের মাঝে অনেকক্ষণ থাকলে প্রথমে কান ঝালাপালা শুরু হবে, পরে আস্তে আস্তে মাথা খারাপ হবে, আর কানের শ্রবণশক্তি কমতে থাকবে। অনেক সময়ে হার্ড-হ্যাট বাধ্যতামূলক, তানাহলে, উপর থেকে কিছু পড়ে মুন্ডু হারাবেন। আজকাল ফ্লোরোসেন্ট জ্যাকেটও পড়ে।
গাড়ির মতই, ইঞ্জিনের ভিতরে জ্বালানী-তেল পুড়িয়ে সিলিন্ডারকে উঠানামা করানো হয়। সিলিন্ডারের নীচে পিস্টন-কানেক্টিংরডের মাধ্যমে ক্র্যাঙ্কশ্যাফট লাগানো থাকে। সিলিন্ডারের ক্রমাগত উঠানামার ফলে ক্র্যাঙ্কশ্যাফট ঘুরতে থাকে। ক্র্যাঙ্কশ্যাফটের শেষমাথায় প্রপেলার-শ্যাফট লাগানো; যার শেষমাথায় প্রপেলার লাগিয়ে দিলেই হলো। সেটাও এখন বন্বন্ করে ঘুরবে। কিন্তু? একটা কিন্তু থেকে যায়। প্রপেলার তো থাকে জাহাজের বাইরে, পানির তলায়। আর ইঞ্জিন তো জাহাজের ভিতরে। তার মানে, জাহাজের খোলে একটা ফুটা করে প্রপেলার-শ্যাফট বের করে দিয়ে, বাইরে প্রপেলারের সঙ্গে যুক্ত করতে হয়। সেই ফুটা জায়গাটা কিন্তু খুবই ক্রিটিক্যাল – শ্যাফটের সমান সাইজের হতে হবে। বেশী বড় হয়ে গেলে সমুদ্রের পানি জাহাজে ঢূকে যাবে; আবার ছোট হলে, শ্যাফটের সঙ্গে ক্রমাগত ঘষা খেয়ে খেয়ে ভীষন গরম হয়ে আগুন ধরে যাবে। সেজন্য সেখানে একটা স্পেশাল বেয়ারিং এবং সীল থাকে। অনেক আগেকার যুগে সেখানে lignum vitae নামের এক কাঠ ব্যবহার করতো বেয়ারিং ও সীল হিসাবে। সেই কাঠ, অনেকদিন টিকতো এবং পানি লেগে একটু ফুলে-ফেঁপে উঠে শ্যাফটের সঙ্গে ওয়াটারটাইট হয়ে যেত।
ইঞ্জিন যত জোরে ঘুরবে, প্রপেলারও জোরে ঘুরেবে, আর জাহাজের স্পীড বাড়বে। প্রপেলার তো ফ্যানের মতো ঘুরলো, আর জাহাজ সামনে-পিছে গেলো। এখন ডানে-বামে যাওয়ার জন্য রাডার ঘুরাতে হবে। র্যাডার (radar) হলো, রেডিও ডিটেকশান এন্ড রেঞ্জিং, যে যন্ত্রের স্ক্রীনের মাঝে দূরের বস্তুর অবস্থান দেখা যায়। আর রাডার (rudder) জাহাজের প্রপেলারের পিছনে চারকোনা স্টীলের বিশাল হাল। জাহাজের পিছনে স্টিয়ারিং রুম থাকে। সেখানে ইলেক্ট্রো-হাইড্রোলিক মেকানিজমের মাধ্যমে রাডারের উপরের অংশ, রাডার-স্টক ঘুরানো হয়। ব্যাস, তার ফলেই সেই স্টকের নীচে ঝুলে থাকা বিশাল রাডারটা ডানে-বামে ঘুরে। সিগন্যাল আসে জাহাজের উপরে ব্রীজের হেল্ম (helm – জাহাজের steering wheel) থেকে।
সাধারণতঃ প্রপেলারের ব্লেড, বাসা-বাড়ির টেবিলফ্যানের ব্লেডের মতই, এটাকে FPP (Fixed Pitch Propeller) বলে। আধুনিক জাহাজে CPP – Controllable Pitch Propeller যার প্রতিটা ব্লেডকেও আলাদাভাবে নাড়ানো যায়। এর ফলে প্রপেলার-ব্লেড ঘুরিয়ে, জাহাজের স্পীড বাড়ানো-কমানো সম্ভব। FPP-র মত ইঞ্জিনের স্পীড বাড়াতে কমাতে হয় না।
জাহাজের বিদ্যুৎ-সাপ্লাইয়ের জন্যে থাকে তিন-চারটা জেনারেটর। থাকে স্টীম-বয়লার। জাহাজের সাইজ এবং কি কাজে ব্যবহার করা হবে সেই হিসাবে বয়লারের সংখ্যা ও ক্যাপাসিটি ঠিক করা হয়। আগেকার ষ্টীম-টারবাইন জাহাজগুলোর প্রপেলারও ঘুরাতো বয়লার থেকে তৈরী ষ্টীমে। এখন প্রপেলার না ঘুরালেও, অনেক তেলের ট্যাঙ্কারে কার্গো-পাম্প চালানো হয় ষ্টীম-টারবাইন দিয়ে। এছাড়াও ষ্টীম দিয়ে অনেক কিছুই করা হয় – বিশেষ করে তেল গরম করা, পানি গরম করা ইত্যাদি অনেক কাজ।
জেনারেটর চলে ডিজেল দিয়ে আর মেইন-ইঞ্জিন, বয়লার চলে ডিজেল বা হেভী-অয়েলে। ডিজেলের দাম খুব বেশী, তাই চেষ্টা করা হয় কমদামী হেভী-অয়েল দিয়ে চালাতে। হেভী-অয়েল কম পরিশোধিত, এতে সালফার ও অন্যান্য বর্জ্য-পদার্থ বেশী পরিমাণে থাকে। আজকাল তাই অনেক দেশই বায়ুদূষণ কমানোর জন্য, তাদের জলসীমায় হেভী-অয়েল পুড়াতে চালাতে দেয় না। আর এমনিতেও, উন্মুক্ত সমুদ্রে, আমরা যখন ফুল-স্পীডে থাকি তখন হেভী-অয়েল দিয়ে চালালেও, বন্দরের কাছে এলে বা নদীপথে চললে, জাহাজের স্পীড বাড়াতে-কমাতে হয়, বন্ধ করতে হয়, আগেপিছে যেতে হয় (manoeuvring)। তখন হেভী-অয়েল পুড়িয়ে চালালে ইঞ্জিনের ক্ষতি হবে। সেসময়ে আমরা ডিজেল দিয়ে চালাই। তাই মেরিন-ইঞ্জিনকে dual-fuel ইঞ্জিন বলে।
আমরা পোর্টে গেলে সেখান থেকে ডিজেল আর হেভী-ওয়েল কিনি (বাঙ্কার বলে)। কিন্তু, সেই তেলে পানি থাকে, ময়লা থাকে, এমনকি বালু পর্যন্ত থাকতে দেখেছি। তাই তেল কিনে জাহাজে সেন্ট্রিফুগাল পিউরিফায়ার দিয়ে আবারো পরিশোধিত করতে হয়। অনেকগুলো চাকতি বনবন করে ঘুরে আর তখন সেগুলোর মাঝ দিয়ে তেল ঢেলে দিলে, সেন্ট্রিফুগাল ফোর্সের জন্যে নিজেদের মধ্যে আলাদা আলাদা হয়ে ভারী বালু বা ময়লা দূরের দিকে ছিটকে যায়, তারপরে থাকে পানি, তারপরে তেল। সেগুলোকে এক একদিকের পাইপ দিয়ে নিয়ে নিলেই হলো। তেল পুড়ানো হবে ইঞ্জিনে, আর ময়লা (sludge) আলাদা থাকবে, পোর্টে গেলে কালেক্ট করবে।

যেকোন ইঞ্জিন বন্ধ অবস্থা থেকে চালু করতে হলে, প্রথমে যেভাবেই হোক কয়েকটা ঘুরন্তি দিতে হয়। মোটরসাইকেলের ইঞ্জিন পা দিয়ে কিক-স্টার্ট দেয়, বেবী-ট্যাক্সীতে আগে একটা ডান্ডা তুলে তুলে স্টার্ট দিতো। পুরানো আমলের বাস-ট্রাকের সামনের দিকে একটা রড ঢুকিয়ে ঘুরাতো। আর এখন মডার্ন গাড়িগুলোতে ইলেক্ট্রিকাল স্টার্টার থাকে, আপনি চাবি ঘুরাবেন ব্যাটারি দিয়ে একটা ছোট ইলেক্ট্রিক মোটর ঘুরে আপনার গাড়ির ইঞ্জিনকে ঘুরিয়ে স্টার্ট দিয়ে দিবে। কিন্তু জাহাজের বেলায় কি হবে? ইয়া এত্তোবড় ইঞ্জিন ঘুরানো চাট্টিখানি কথা নয়। আমরা কমপ্রেসড্ বাতাস হাই-প্রেসারে ব্যবহার করে ধুম করে ইঞ্জিন ঘুরিয়ে দিয়ে স্টার্ট দিই। একবার কয়েকটা ঘূর্ণন দিয়ে স্টার্ট নিলেই সেটা তখন ডিজেল জ্বালিয়ে নিজে নিজে চলতে সক্ষম। সেজন্য জাহাজে এয়ার-কম্প্রেসার থাকে, সেগুলো দিয়ে আমরা বড়-বড় কম্প্রেস্ড্-এয়ার ট্যাঙ্ক ভরে রাখি। এগুলো কিন্তু ভাসমান বোম্ব।
এছাড়াও, জাহাজে অনেক অনেক পাম্প থাকে, নানান কাজে লাগে – সমুদ্রের পানি তোলা (ব্যালাস্ট বা কুলিং), ফ্রেশ-পানি সার্কুলেট করা, তেল আদান-প্রদান, ময়লা এবং তেল ইত্যাদির পাম্প। তবে সবচেয়ে গুরুত্বপূর্ণ হলো ফায়ার-পাম্প, যেটা আগুন লাগলে সমুদ্র বা নদী থেকে পানি পাম্প করে ফায়ার-হোসে দিবে। ইঞ্জিনরুমে মেইন ফায়ার-পাম্প ছাড়াও, সেইফটির জন্য, ইঞ্জিনরুমের বাইরে আরো একটা ইমারজেন্সী ফায়ার-পাম্প থাকে। ইঞ্জিনরুমে আগুন ধরলে, যাতে এটা চালিয়ে আগুন নেভানো যায়। জাহাজের এয়ার-কন্ডিশানিং সিস্টেমও থাকে ইঞ্জিনরুমে। সেইসঙ্গে থাকে রেফ্রিজারেশান সিস্টেম। সকলের জন্য অনেক দিনের খাওয়াদাওয়া কিনে স্টোরে আর ফ্রীজে রাখা হয়। সেগুলোকে ঠান্ডা রাখার জন্য বড় কোল্ড-স্টোরেজের মত রেগুলার ফ্রীজ এবং ডীপ-ফ্রীজ চালাতে হয়।
মডার্ন জাহাজে কন্ট্রোল-রুম থাকে, সেখান থেকেই ইঞ্জিন চালানো হয়। পুরানো জাহাজে, কোনো কন্ট্রোলরুম ছিলো না। আমরা ভীষণ গমগম শব্দের মাঝেই, গরমে ঘামতে ঘামতে কাজ করে যেতাম। এতক্ষণ তো অনেক কিছুই বললাম, কিন্তু একটা জিনিস বুঝেছেন, ইঞ্জীনরুম যে পানির তলায় থাকে। যেহেতু মেইন-ইঞ্জিন প্রপেলার ঘুরায়, আর প্রপেলারকে পানির তলায়ই থাকতে হবে, তাই জাহাজের ইঞ্জিনরুম পানির অনেক নীচে – তিন কি চারতলা গভীরে। সেখানে সারাক্ষণই লাইট জ্বলে, সূর্যের আলো পৌঁছায়ই না। তবে একটা জিনিসই ভালো, জাহাজের সবচেয়ে নীচের পয়েন্ট বলে সেখানে রোলিং কম হয়।

আমার একটা অনুরোধ – কারো যদি কোনো বিষয়ে কোনো কৌতুহল থাকে, তাহলে আমাকে refayet@yahoo.com ই-মেইলে যোগাযোগ করতে পারেন।
টলিডো, ওহাইও, ২০২২


Leave a comment